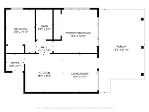
18506 Alburtis Ave — Artesia, CA 90701 October 15, 2025 $2,600 | 2 BR / 1 BA | Rear Duplex in Artesia ALL REMODELED w/Small Private Yard, AC, & W/D Hookups No cats, No dogs $2,600 security deposit Related Posted in Uncategorized
You must be logged in to post a comment.